Mieszkanie Częstochowa Parkitka 1

Key Details

Status
Na sprzedaż
Type
Częstochowa
Rynek
Pierwotny
Miasto
Częstochowa
Dzielnica
Parkitka
Ulica
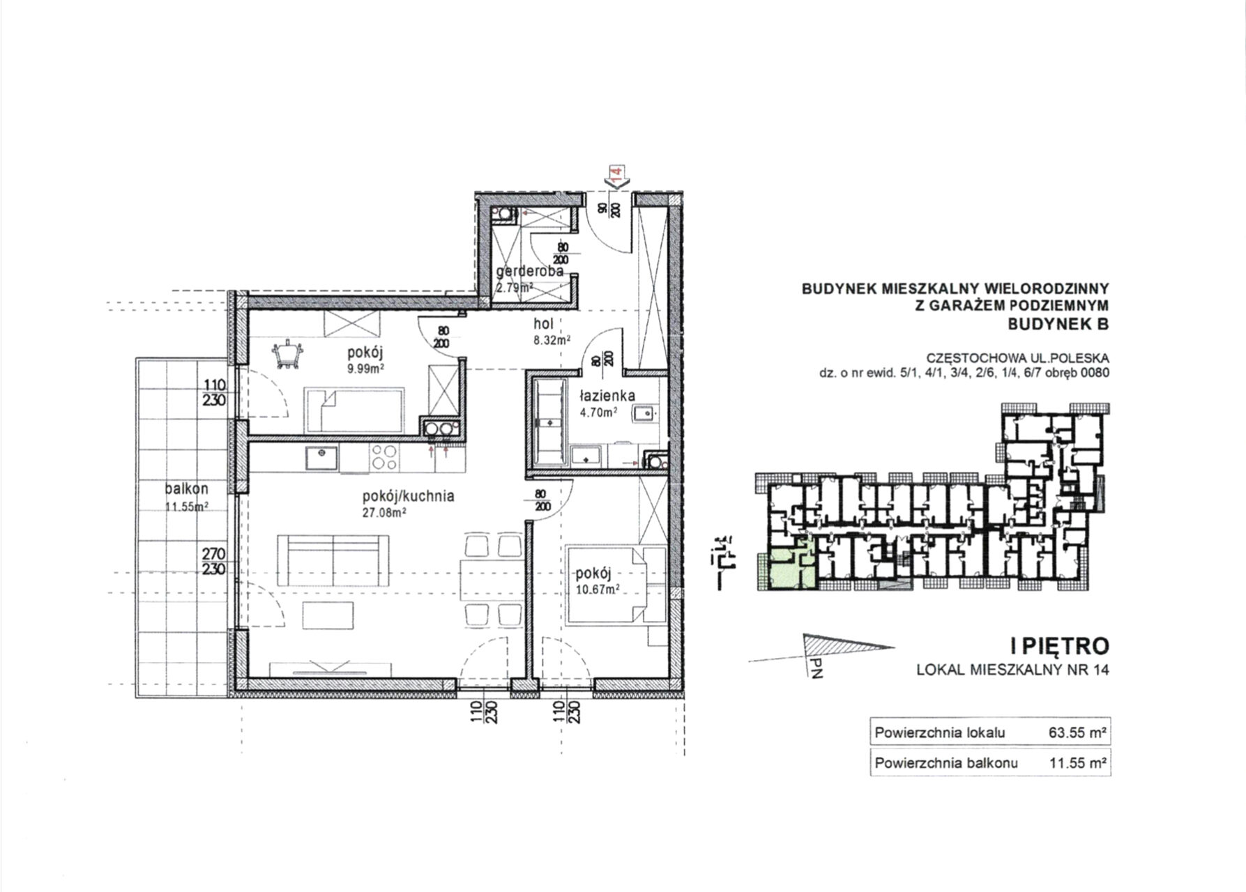
Poleska 37/14
Nr piętra
1/5
Winda
Tak
Powierzchnia
63,55 m²
Powierzchnia działki
nd
Cena
779 000 PLN
Cena za metr kwadratowy
12 258,06 PLN
Balkon
1
Taras
nd
Parking podziemny
nd
Miejsce postojowe
1
Klub fitness
nd
Schowek
nd

Overview

Wygodne i funkcjonalne mieszkanie usytuowane na 1 piętrze kompleksu mieszkaniowo-apartamentowego Panorama II B przy ulicy Poleskiej 37 w Częstochowie

Lokalizacja
Poleska Apartamenty Panorama II B przy ulicy Poleskiej 37 w Częstochowie to przestronne osiedle, na którym mieszkańcy docenią dostosowaną do ich potrzeb przestrzeń. Minimalna odległość między budynkami to 19 metrów. Gustowna i elegancka linia sześciokondygnacyjnego budynku wraz z obszernym parkingiem za szlabanem, harmonijnie wpisuje się w otoczenie pełne zieleni, pozwalając cieszyć się mieszkańcom jego ponadczasowym stylem. Zarówno do centrum jak i do autostrady można dojechać w zaledwie 10 minut.

Nieruchomość
Mieszkanie nr 14 o powierzchni 63,55 m² z dużym balkonem, składa się z pokoju dziennego z aneksem kuchennym, sypialni z szafą w zabudowie, pokoju, garderoby, łazienki z WC. W przedpokoju znajduje się kolejna duża szafa w zabudowie. Mieszkanie z ekspozycją południowo-wschodnią.

Prezentowany lokal do świetna nieruchomość inwestycyjna, funkcjonalnie zaaranżowana przy użyciu materiałów wysokiej jakości – drewniane podłogi, elegancki włoski gres w łazience, armatura renomowanych firm. Całości dopełniają unikatowe meble robione na wymiar z płyt EGGER, których matowa powierzchnia jest wolna od odcisków palców.

Do mieszkania przynależy 1 miejsce postojowe dodatkowo płatne 20 000 PLN.

Koszt utrzymania nieruchomości:
Na koszty utrzymania składa się niewielki czynsz w kwocie 255 zł (zawiera opłatę na utrzymanie części wspólnych, fundusz remontowy i zaliczkę na wymianę wodomierza) oraz opłata za media według zużycia.

Floor Plans

Listed By

Similar Properties